2237 W Post Oak CircleDayton, TX 77535
Due to the health concerns created by Coronavirus we are offering personal 1-1 online video walkthough tours where possible.




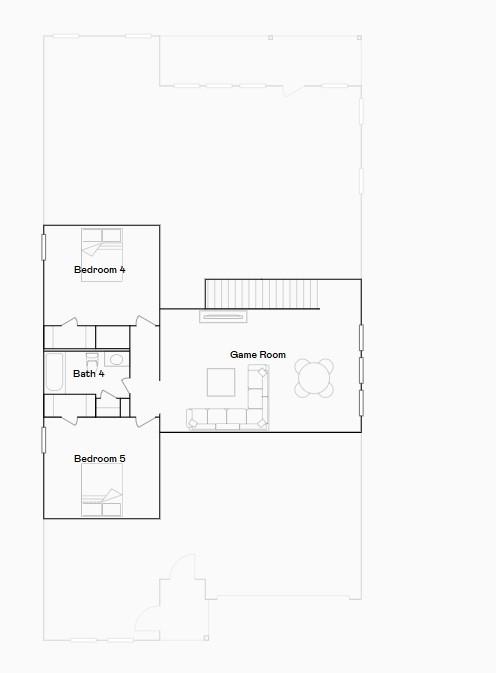
NEW! Lennar Classic Collection Steely Plan with Brick Elevation "C4" in River Ranch! This great two-story home features a Next Gen® suite with a separate entrance, living space, bedroom and bathroom, ideal for multigenerational households or residents needing extra privacy. On the first floor, an open layout shared between the kitchen, nook and family room offers convenient access to the covered patio, making entertaining easy. The luxe owner's suite is tucked into a private rear corner and has an en-suite bathroom and walk-in closet, with another bedroom near the front of the home. Two additional bedrooms share the second floor with a versatile game room.
| 10 hours ago | Listing updated with changes from the MLS® | |
| 23 hours ago | Listing first seen on site |
IDX information is provided exclusively for consumers’ personal, non-commercial use. It may not be used for any purpose other than to identify prospective properties consumers may be interested in purchasing. This data is deemed reliable but is not guaranteed accurate by the MLS.
Data provided by HAR.com © 2025. All information provided should be independently verified.


Did you know? You can invite friends and family to your search. They can join your search, rate and discuss listings with you.